South Nowra

8 Dove Close

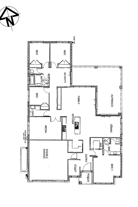
Room to Move!

Located in the highly sought after Twin Waters estate this magnificent four bedroom home is situated on a large 761sqm (approx.) block.

Step inside and be impressed by the well designed floor plan and quality finishes throughout. The stunning gourmet kitchen with butlers pantry is at the heart of the home and overlooks the spacious open plan living and dining areas. Sliding stacker doors open to the extra-large alfresco for the perfect balance of indoor/outdoor living. The sunny north facing rear yard is a blank canvas and yours to transform. Large master suite with walk in robe and ensuite, remaining bedrooms all with built in robes

Additional features include;
- Oversized media room
- Activity area
- Study
- 900mm Gas cooktop
- Split system air conditioner
- Remote double garage with internal access
- Side yard access
- Fully fenced

So if you appreciate the finer things in life, then this is one not to be missed!
For further details contact Barbara Ferguson 0408 695 079

Sold

4
2
2

Property Features

  • Land Size
    761 sqm
  • Air Conditioning
  • Built In Robes
  • Fully Fenced
  • Outdoor Ent
  • Remote Garage
  • Study

Property Agent